Spacious Corporate Office in The Colosseum | Gateway to Century City

Ref # 2245345
R114,075
/ month
Property Details
1 Century Way, Colosseum, 306
585m²
585m²

Position your business at one of Century City’s most recognisable commercial landmarks. The Colosseum Building is a prominent mixed-use development ideally located at the gateway to Century City, offering a vibrant combination of hotel accommodation, offices, retail and restaurants within one secure and convenient environment. The building benefits from full-time security and ample on-site visitor parking, while popular amenities such as Vida e Caffè, Woolworths Food and Clicks Pharmacy are located within the complex for everyday convenience.

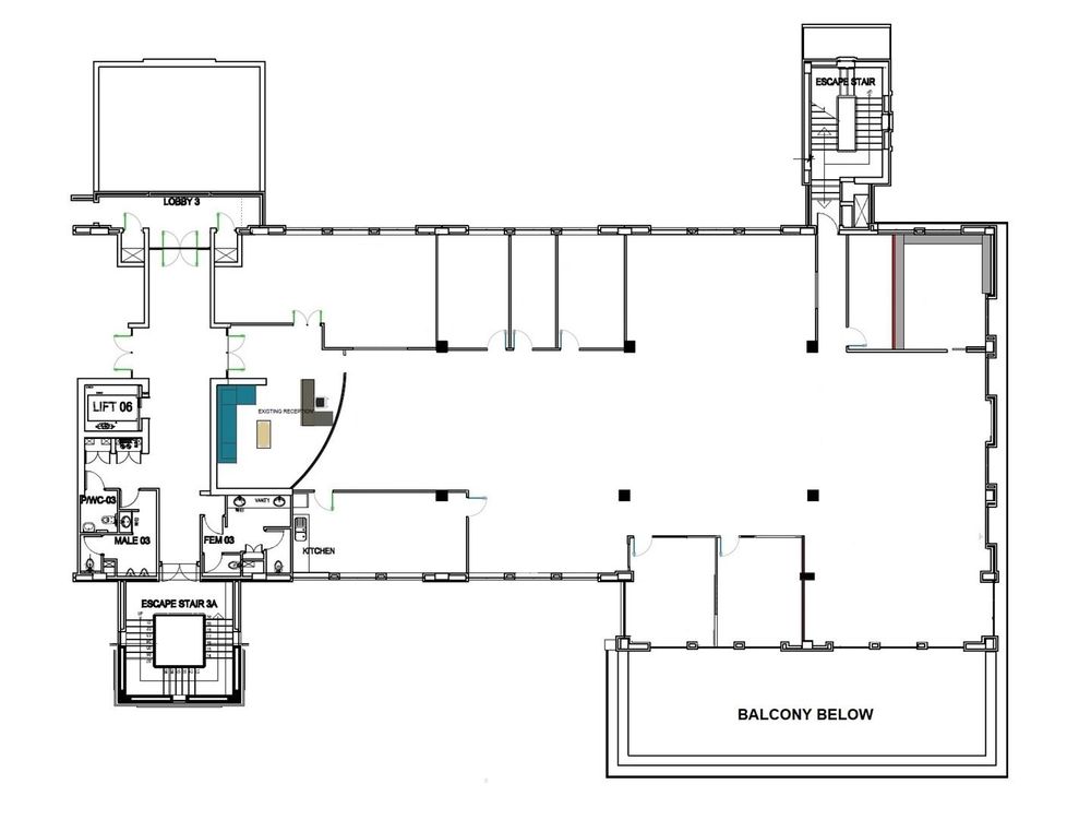
This office suite is situated in Foyer 3 on the third floor, providing a professional and accessible workspace suited to established businesses. The existing layout welcomes visitors into a reception area and includes a dedicated boardroom, a large open-plan workspace, several private offices, a server room, storeroom and a kitchen. The configuration offers an excellent balance between collaborative work areas and private offices with flexibility to adapt or fully transform the layout to meet specific requirements.

The unit is supported by 23 allocated parking bays, including 14 basement bays 7 covered carport bays and 2 rooftop open bays.

With its prime location, integrated amenities and professional environment, The Colosseum remains one of Century City’s most convenient and well-known office destinations.

To register your interest in this office to rent in Century City, simply reply to this listing or contact the broker to discuss this opportunity or other offices available to rent or purchase in the area. You can expect prompt response times and professional service to assist you in securing the right property for your business.

Property Features
Property Type
Office
Floor Size
585m²
Land Size
585m²
Costs and Terms
Rates & Taxes
±R1
Levy
±R1
Available From
01 Aug 2026
Lease Period
Negotiable
Additional Information
Grade
A
Video Tour
Share this Property
Sable Park view
About Sable Park
Sable Park, a testament to architectural brilliance, is an iconic commercial office development nestled in the heart of Century City's Bridgeways precinct. Designed by the acclaimed dhk Architects and developed by the esteemed Rabie Property Group, this landmark property redefines the standards of corporate excellence and sustainability.
Make an enquiry
Interested in this property? Please fill in your details below, and we will contact you as soon as possible.
By clicking on "submit" you agree to our privacy policy.